Product Series
推薦產品
河南華東起重機械設備公司
服務熱線:400 086 9590
公司:河南華東起重機械設備有限公司
聯系人:賈經理
聯系電話:13903802779
地址:河南新鄉市封丘縣起重機工業園區
當前位置: 起重機 > 起重機文章
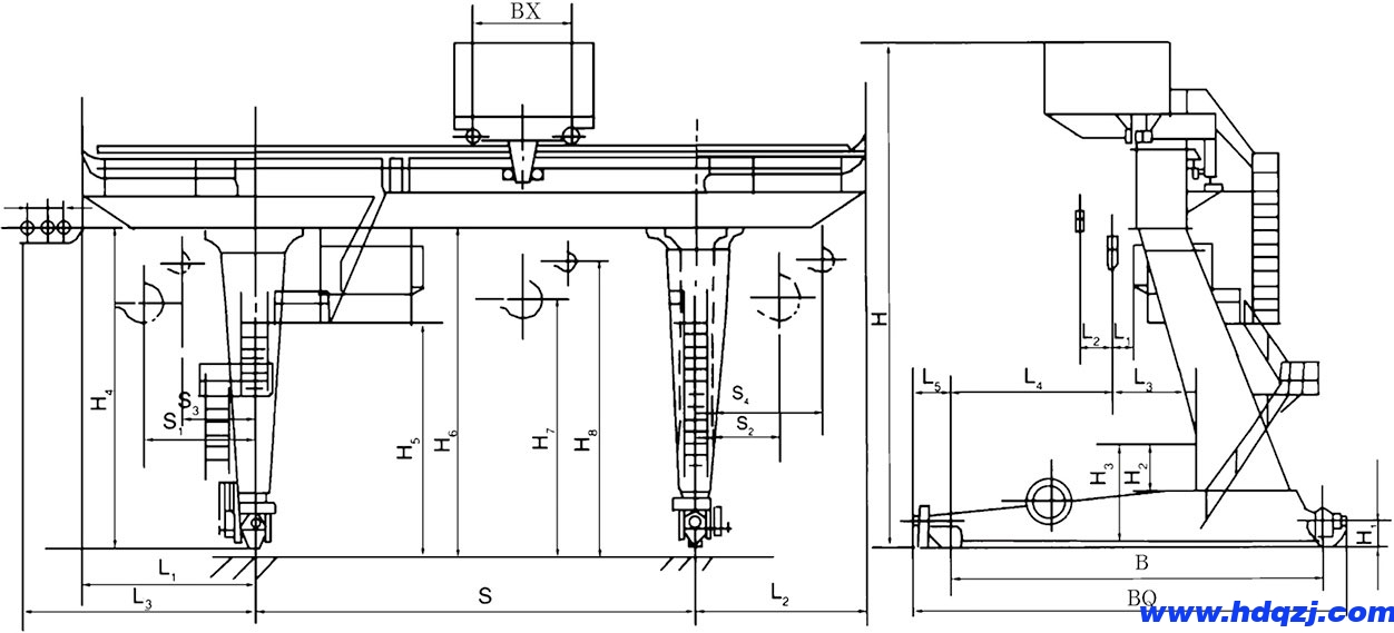
5噸10噸MDG型單梁門式起重機技術參數
時間:2024-05-27來源:起重機廠家瀏覽次數:1
MDG型單梁門式起重機也稱為L型偏掛門式起重機,是常用的一種單主梁門式起重機,用于室外貨場或者生產線,小編為大家介紹下5噸、10噸MDG型單梁門式起重機技術參數。
MDG型單梁門式起重機結構圖

5噸、10噸MDG型單梁門式起重機技術參數表:
起重量 Lifting Weight | t | 5T | 10T | |||||||||
| 跨度 Span | m | 18M | 22M | 26M | 30M | 35M | 18M | 22M | 26M | 30M | 35M | |
| 起升高度(m)Lift Height | 10M | 11M | 10M | 11M | ||||||||
| 工作制度Working | 中級 | 中級 | ||||||||||
| 速度 Speed | 起升lift | min | 12.75 | 9.82 | ||||||||
| 小車運行 handcar travel | 37.5 | 39.7 | ||||||||||
| 大車運行 crat travel | 46.3 | 40 | 39.5 | 40 | ||||||||
| 電動機 Motor | 起升lift | type/kw | YZR160L-6/11 | YZR200L-8/18.5 | ||||||||
| 小車運行 handcar travel | YZR132M1-6/2.5 | YZR132M2-6/4 | ||||||||||
| 大車運行 crat travel | YZR160M2-6/8.5 | YZR160M2-6/13×2 | YZR160M2-6/8.5×2 | YZR160L-6/13×2 | ||||||||
| 重量 Weight | 小車 Handcart | t | 2.93T | 2.94T | 2.95T | 2.96T | 4.21T | 4.23T | 4.27T | |||
| 總重量TotalWeight | 32.4T | 34.8T | 41T | 49T | 52T | 41.3T | 45T | 48.7T | 58.3T | 62.4T | ||
| z大輪壓 Max.Wheel Pressure | KN | 160 | 166 | 185 | 213 | 233 | 225 | 236 | 239 | 286 | 298 | |
| 薦用鋼材Steel track | 43kg/m | 43kg/m | ||||||||||
| 電源 Power Supply | 三相交流 3-Phase A.C 50Hz 380V | |||||||||||
| 起重量 Lifting Weight | 跨度 Span (m) | 尺寸(mm)size | ||||||||||||||||||||||
| B | Bx | BQ | H | H1 | H2 | H3 | H4 | H5 | H6 | H7 | L1 | L2 | L3 | I1 | I2 | I3 | I4 | I5 | S1 | S2 | S3 | S4 | ||
| 5T | 18M | 6000 | 1700 | 7467 | 12889 | 577 | 720 | 1820 | 9610 | 6647 | 9447 | 10000 | 6717 | 6717 | 8074 | 590 | 1920 | 2130 | 865 | 5000 | 5000 | |||
| 22M | 9347 | |||||||||||||||||||||||
| 26M | 7000 | 8529 | 13889 | 660 | 1428 | 2778 | 9530 | 7647 | 9247 | |||||||||||||||
| 30M | 10997 | 2572 | 921 | 7000 | 7000 | |||||||||||||||||||
| 35M | 10360 | 7447 | 9897 | 11000 | 8717 | 8717 | 10074 | 2570 | ||||||||||||||||
| 10T | 16M | 7000 | 2300 | 8283 | 13597 | 660 | 1475 | 2825 | 9950 | 7251 | 9781 | 10000 | 7027 | 7027 | 8380 | 570 | 1800 | 2690 | 921 | 5000 | 5000 | |||
| 22M | 9681 | |||||||||||||||||||||||
| 26M | 7500 | 9029 | 2977 | 10281 | 2904 | |||||||||||||||||||
| 30M | 14545 | 10950 | 7051 | |||||||||||||||||||||
| 36M | 7551 | 10231 | 11000 | 9027 | 9027 | 10380 | 7000 | 7000 | ||||||||||||||||
上一篇:歐式單梁起重機技術參數
推薦文章:




















