Product Series
推薦產品
河南華東起重機械設備公司
服務熱線:400 086 9590
公司:河南華東起重機械設備有限公司
聯系人:賈經理
聯系電話:13903802779
地址:河南新鄉市封丘縣起重機工業園區
當前位置: 起重機 > 起重機文章
歐式雙梁橋式起重機技術參數
時間:2024-05-25來源:起重機廠家瀏覽次數:1
歐式雙梁橋式起重機是基于模塊化設計理論和現代計算機技術,采用新材料,新技術完成了具有高度共性,智能化和高科技的新型橋式起重機。
歐式雙梁橋式起重機與傳統起重機相比具有以下優點:
1.高低,重量輕; 小鉤限制,工作范圍大。
與普通型橋式起重機相比,起重機重量降低了15%?30%,車輪壓力降低了15%?30%,起重機高度降低了20?30%,大大降低了工廠的成本。
手推車設計緊湊,可以實現較小的鉤鉤上,左,右限制,大大增加了吊鉤的工作范圍。
歐式雙梁起重機采用獨特的設計理念,具有尺寸小,重量輕,輪壓小的特點。
歐式起重機優點:
1、低凈空、輪壓小、運行平穩 ;
2、定位快捷、操作簡單、免維護設計 ;
3、設計合理、使用壽命長;
4、安全可靠、提高生產效率。
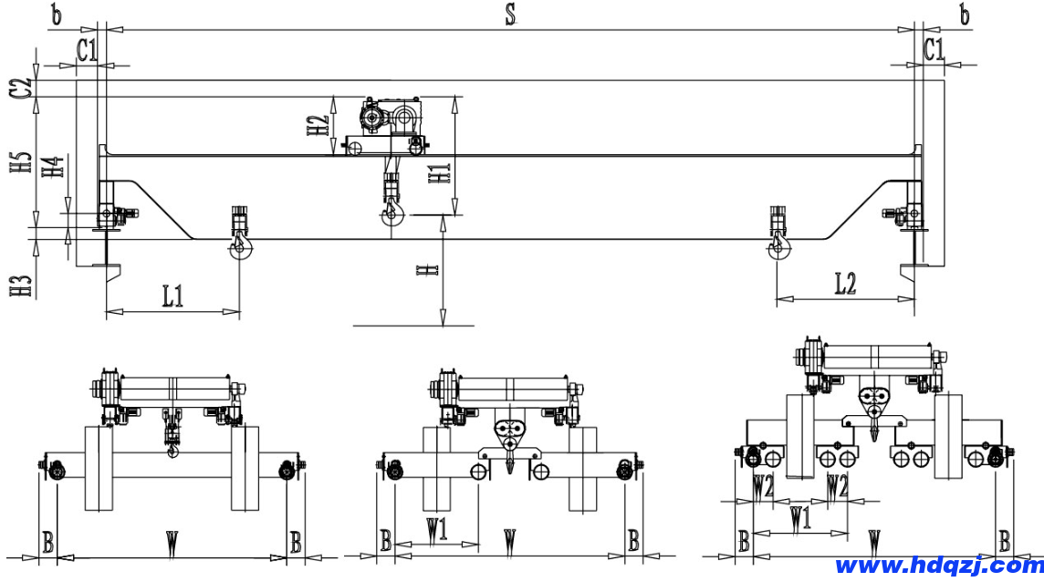
歐式雙梁橋式起重機結構圖

歐式雙梁橋式起重機參數表























