Product Series
推薦產品
河南華東起重機械設備公司
服務熱線:400 086 9590
公司:河南華東起重機械設備有限公司
聯系人:賈經理
聯系電話:13903802779
地址:河南新鄉(xiāng)市封丘縣起重機工業(yè)園區(qū)
當前位置: 起重機 > 起重機文章
QZ型抓斗橋式起重機
時間:2024-05-24來源:起重機廠家瀏覽次數:1


QZ型抓斗橋式起重機適用冶金、水泥、化工及其它企業(yè)的倉庫和車間在室內或露天和固定跨間從事礦石、石灰石、礦粉、焦炭、煤砂等散粒物的搬運工作。
本機屬于重級(A6)工作制度,起重量包括抓斗自重。
本機由箱形橋架、大車運行機構、小車、抓斗、電氣設備五部分組成,全部機構均在操縱室內操縱。
取物裝置為雙卷筒的四繩抓斗,結構簡單工作可靠。抓斗可在任一高度張開和閉合,當抓取物料顆粒在100mm以下時效果好,生產效率高,當抓取物顆粒大干200mm時需選用帶齒抓斗。
抓斗適用于自然堆積狀態(tài)下的散粒物料,當抓取水下物料或特殊物料時須在定貨的特別提出,當露用須帶防水設備。
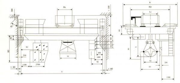
QZ型抓斗橋式起重機參數表
起重量 | t | 5 | 10 | |||||||||||||||||
跨度 | m | 10.5 | 13.5 | 16.5 | 19.5 | 22.5 | 25.5 | 28.5 | 31.5 | 10.5 | 13.5 | 16.5 | 19.5 | 22.5 | 25.5 | 28.5 | 31.5 | |||
起升高度 | 20 | 18 | ||||||||||||||||||
| 速度 | 起升 | m/min | 40.1 | 40.2 | ||||||||||||||||
| 小車 | 44.5 | 45.6 | ||||||||||||||||||
| 大車 | 室內 | 93.7 | 112 | 111.3 | 101 | |||||||||||||||
| 室外 | 115.5 | 112 | 111.3 | 101 | ||||||||||||||||
| 電動機 | 起升 | 型號/kw | YZR225M-8/22 | YZR280S-10/37 | ||||||||||||||||
| 小車 | YZR132M2-6/3.7 | YZR132M1-6/2.2 | ||||||||||||||||||
| 大車 | 室內 | YZR160M1-6(5.5×2) | YZR160M2-6(7.5×2) | YZR160M1-6(5.5×2) | YZR160M2-6(7.5×2) | |||||||||||||||
| 室外 | YZR160M1-6(5.5×2) | YZR160M2-6(7.5×2) | YZR160M1-6(5.5×2) | YZR160M2-6(7.5×2) | ||||||||||||||||
工作級別 | 43Kg/m | A6 | ||||||||||||||||||
總重 | 室內 | t | 17.5 | 19 | 20.9 | 23.6 | 26.4 | 31.1 | 34.5 | 37.4 | 25.1 | 26.7 | 28.8 | 32.9 | 35.4 | 40 | 43.4 | 46.7 | ||
| 室外 | 18.5 | 19.7 | 21.6 | 24.4 | 27.2 | 31.8 | 35.2 | 38.1 | 25.9 | 27.5 | 29.6 | 33.7 | 36.3 | 40.8 | 44.2 | 47.5 | ||||
| 大輪壓 | 吸重 | 室內 | 7.5 | 8.3 | 8.9 | 9.7 | 10.5 | 11.6 | 12.5 | 13.4 | 11.7 | 12.6 | 13.3 | 14.5 | 15.5 | 16.6 | 17.6 | 18.6 | ||
| 自重 | 室外 | 7.9 | 8.7 | 9.8 | 10.1 | 10.9 | 12 | 12.9 | 13.8 | 12 | 12.9 | 13.7 | 15 | 15.9 | 17.1 | 18.1 | 19.1 | |||
薦用鋼軌 | 43Kg/m | 43Kg/m:QU70 | ||||||||||||||||||
電源 | 三相交流 380V 50Hz | 三相交流 380V 50Hz | ||||||||||||||||||
| 主要尺寸 | ||||||||||||||||||||
Lx | 2000 | 2000 | ||||||||||||||||||
BQ | 4000 | 4100 | 5000 | 4000 | 4100 | 5000 | ||||||||||||||
BX | 2300 | 2900 | ||||||||||||||||||
B | 5570 | 5670 | 6300 | 5600 | 5650 | 6200 | ||||||||||||||
b | 230 | 230 260 | ||||||||||||||||||
H | 1877(2747) | 1927(2797) | 2065(2815) | 2185(2905) | ||||||||||||||||
H1 | 725 | 775 | 775 | 865 | ||||||||||||||||
H2 | 24 | 126 | 226 | 376 | 528 | 628 | 778 | 928 | 80 | 80 | 180 | 240 | 388 | 538 | 688 | 838 | ||||
H3 | 2526 | 2546 | 2596 | 2756 | 2906 | 2838 | 2988 | 3138 | 2526 | 2546 | 2596 | 2756 | 2906 | 2886 | 3036 | 3186 | ||||
S1 | 1000(1800) | 1950(2150) | ||||||||||||||||||
S2 | 1600 | 1600(1800) | ||||||||||||||||||
| 抓斗參數 | ||||||||||||||||||||
| 類型 | 輕型 | 中型 | 重型 | 輕型 | 中型 | 重型 | ||||||||||||||
| 容量 | m3 | 3 | 1.5 | 1 | 6 | 3 | 2 | |||||||||||||
| 物料容量 | t/m3 | 0.6-0.92 | 1-1.9 | 2.3 | 0.6-1.0 | 1-2 | 2-3 | |||||||||||||
| 自重 | kg | 2419 | 2515 | 2318 | 4243 | 4073 | 3966 | |||||||||||||
| 尺寸 | b1 | mm | 1852 | 1452 | 1152 | 2256 | 1960 | 1460 | ||||||||||||
| b2 | 2470 | 2370 | 2370 | 3080 | 2780 | 2780 | ||||||||||||||
| b3 | 3000 | 2600 | 2600 | 3700 | 3200 | 3200 | ||||||||||||||
| h | 2926 | 2867 | 2867 | 3615 | 3315 | 3315 | ||||||||||||||
| h1 | 3426 | 3452 | 3452 | 4265 | 4015 | 4015 | ||||||||||||||




















