Product Series
推薦產品
河南華東起重機械設備公司
服務熱線:400 086 9590
公司:河南華東起重機械設備有限公司
聯(lián)系人:賈經理
聯(lián)系電話:13903802779
地址:河南新鄉(xiāng)市封丘縣起重機工業(yè)園區(qū)
當前位置: 起重機 > 起重機文章
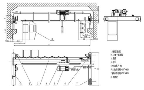
LDP型電動單梁起重機
時間:2024-05-10來源:起重機廠家瀏覽次數:1
產品簡介
LDP型電動單梁起重機屬于超低凈空輕小型起重機,電動葫蘆位于主梁*側,增加了吊鉤的服務空間,可以降低廠房高度和造價。該產品因具有小車輪距大、運行平穩(wěn)、結構緊湊、剛性好、操作靈敏、噪音低、安全可靠、造型美觀等優(yōu)點,廣泛應用于工作環(huán)境在-25℃~40℃,車間廠房凈空高度又較低的場所。
性能參數
LDP型電動單梁起重機是按GB/T 3811-2008、JB/T1306-2008標準設計制造的,與CD1、MD1電動葫蘆配套使用的輕型起重設備。其額定載荷3t~10t,跨度7.5m~22.5m,工作級別A4,起升高度6~12m,操作方式主要是地面操縱方式(地操、遙控操作、地+遙操作)。如果有跨度和起升高度超出樣本中所列的范圍,我們還可以根據用戶需求進行非標設計。
產品示意圖

本樣本所提供的數據及圖表僅供參考,詳細參數請致電本公司予以確認。




















