Product Series
推薦產品
河南華東起重機械設備公司
服務熱線:400 086 9590
公司:河南華東起重機械設備有限公司
聯系人:賈經理
聯系電話:13903802779
地址:河南新鄉市封丘縣起重機工業園區
當前位置: 起重機 > 起重機文章
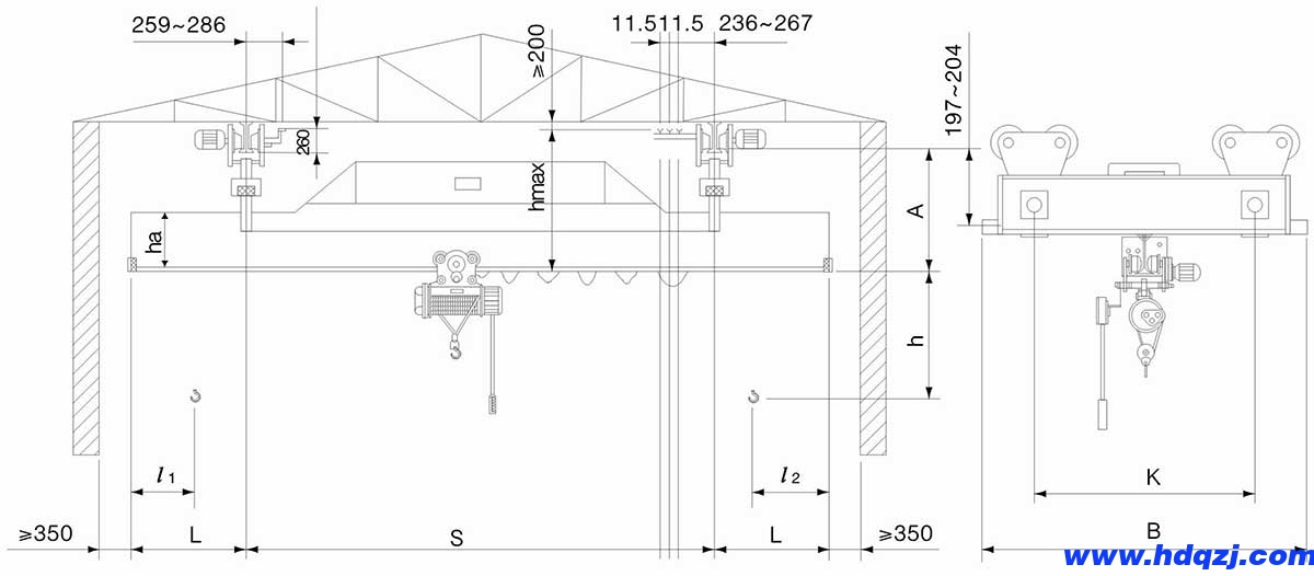
LX型0.5~10t懸掛橋式起重機
時間:2024-05-09來源:起重機廠家瀏覽次數:1
上一篇:電動葫蘆|1t 掛鉤式電動葫蘆
下一篇:LD型2~16t電動單梁式起重機
推薦文章:























