Product Series
推薦產品
河南華東起重機械設備公司
服務熱線:400 086 9590
公司:河南華東起重機械設備有限公司
聯系人:賈經理
聯系電話:13903802779
地址:河南新鄉市封丘縣起重機工業園區
當前位置: 起重機 > 起重機文章
5噸L型電動葫蘆門式起重機參數5噸L型單梁偏掛門式起重機參數表
時間:2024-01-17來源:起重機廠家瀏覽次數:1
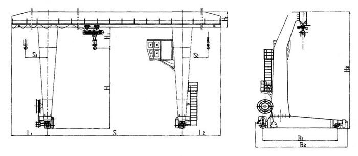
L型電動葫蘆門式起重機是指以電動葫蘆葫蘆作為起升機構的L型單主梁門式起重機,L型單梁偏掛門式起重機與常規MH型門式起重機不同的是其支腿形狀像字母L,故得其名。小編為大家介紹下5噸L型電動葫蘆門式起重機技術參數。
L型單梁偏掛門式起重機圖片
L型電動葫蘆門式起重機結構圖:
5噸L型電動葫蘆門式起重機技術參數表:
| 起重機 | t | 5 | ||||
| 跨度 | m | 16 | 20 | 30 | ||
| 起升高度 | m | 6 9 | ||||
| 運行機構 | 運行速度 | 地面 | m/min | 20 | ||
| 司機室 | 20 30 40 | |||||
| 電動機 | 地面 | 型號/kw | YZR132M2-6/4X2 | YZR160M1-6/6.3×2 | ||
| 司機室 | ||||||
| 減速器 | ZSC400 | ZSC600 | ||||
| 車輪直徑 | mm | 400 | 500 | |||
| 電動葫蘆 | 型號 | CD1 MD1 | ||||
| 起升速度 | m/min | 8 8/0.8 | ||||
| 運行速度 | m/min | 20 | ||||
| 電動機 | 起升 | 型號/kw | ZD141-4/7.5 ZDS10.8/7.5 | |||
| 運行 | ZDY121-4/0.8 | |||||
| 工作制度 | A5 | |||||
| 薦用鋼軌 | P38 P43 | |||||
| 電源 | 三相交流 380V 50Hz | |||||
| 起重機質量 | 地面 | kg | 16500 | 20000 | 26500 | |
| 司機室 | kg | 17500 | 21000 | 27500 | ||
| 最大輪壓 | kN | 80 | 90 | 103 | ||
| 基本尺寸 | L1 | mm | 5000 | 6500 | 9000 | |
| L2 | mm | |||||
| H1 | mm | 1120 | ||||
| H2 | mm | 900 | 1000 | 1250 | ||
| H3 | mm | 8050/11050 | 8150/11150 | 8400/11400 | ||
| B1 | mm | 6000-7500 | 6000-7500 | 6000-7500 | ||
| B2 | mm | 4550-6050 | 4550-6050 | 4550-6050 | ||
| S1 | mm | 4600 | 6100 | 8500 | ||
| S2 | mm | 4600 | 6100 | 8500 | ||
-
04
2024-10
MHL型電動葫蘆偏掛門式起重機技術參數、電動葫蘆門式起重機規格型號
MHL型電動葫蘆偏掛門式起重機技術參數電動葫蘆偏掛起重機工作級別:A3/M3; 電動葫蘆偏掛起重機起升速度:8m/min 、7M/MIN 、3.5M/MIN,可定做雙速(起升快慢雙速);電動葫蘆偏掛起重機運行速度:小車運行:20m/min,30M/MIN,大車運行:20m/min,30M/MIN;電動葫蘆偏掛起重...詳細
-
07
2024-05
軌道門式起重機,偏掛門式起重機
軌道門式起重機軌道門式起重機的技術與安全: 1、軌道的安全檢查:檢查軌道、螺栓、夾板有無裂紋、松脫和腐蝕,如發現裂紋應及時更換,如有其余缺陷應及時修復,主要檢查工具用線路軌道探傷儀?! ?、軌道的測量與調整: (1)軌道的直線性,可用拉鋼絲的方法檢查,即在軌道的兩端車檔上拉一根0.5mm的鋼絲,然后用吊線錘的方法來逐點測量,測點間隔可在2m左右?! ?2)軌道的標高,可用水平儀測量。 (3)...詳細
-
18
2024-01
5噸MDG型偏掛門式起重機技術參數10噸偏掛門式起重機參數表
MDG型單梁門式起重機也稱為L型偏掛門式起重機,是常用的一種單主梁門式起重機,用于室外貨場或者生產線,小編為大家介紹下5噸、10噸MDG型單梁門式起重機技術參數。 MDG型單梁門式起重機結構圖 5噸、10噸MDG型單梁門式起重機技術參數表: 起重量 Li...詳細
-
18
2024-01
L型20t/5t單主梁吊鉤門式起重機參數L型20噸偏掛門式起重機尺寸
20噸偏掛門式起重機參數尺寸 L型20t/5t單主梁吊鉤門式起重機主要技術參數及尺寸,L型20噸偏掛門式起重機主要技術參數及尺寸,L型20t/5t單主梁偏掛門式起重機技術參數表,L型20t/5t單主梁偏掛門式起重機外形尺寸表,20噸偏掛門式起重機主要技術參數及尺寸 20噸偏掛門式起重機圖片 20噸偏掛門式起重機產品介紹 單梁偏掛門式起重機小車在一根單主梁上運行,通過...詳細
-
18
2024-01
L型5t單主梁吊鉤門式起重機參數MGD型5噸偏掛門式起重機尺寸
5噸偏掛門式起重機參數尺寸 L型5t單主梁吊鉤門式起重機主要技術參數及尺寸,5噸偏掛門式起重機主要技術參數及尺寸,L型5t單主梁偏掛門式起重機技術參數表,L型5t單主梁偏掛門式起重機外形尺寸表,5噸偏掛起重機主要技術參數及尺寸 5噸偏掛門式起重機圖片 5噸偏掛門式起重機規格型號: 單梁偏掛門式起重機型號:MDG型、MDGL型、MDGC型、C型、L型;偏掛起重機起重量...詳細
-
18
2024-01
L型32t/5t單主梁吊鉤門式起重機參數L型32噸偏掛門式起重機尺寸
32噸偏掛門式起重機參數尺寸 L型32t/5t單主梁吊鉤門式起重機主要技術參數及尺寸,L型32噸偏掛門式起重機主要技術參數及尺寸,L型32t/5t單主梁偏掛門式起重機技術參數表,L型32t/5t單主梁偏掛門式起重機外形尺寸表,32噸偏掛門式起重機主要技術參數及尺寸 32噸偏掛門式起重機圖片 32噸偏掛門式起重機產品介紹 1.L型32t/5t單主梁吊鉤門式起重機適用...詳細




















